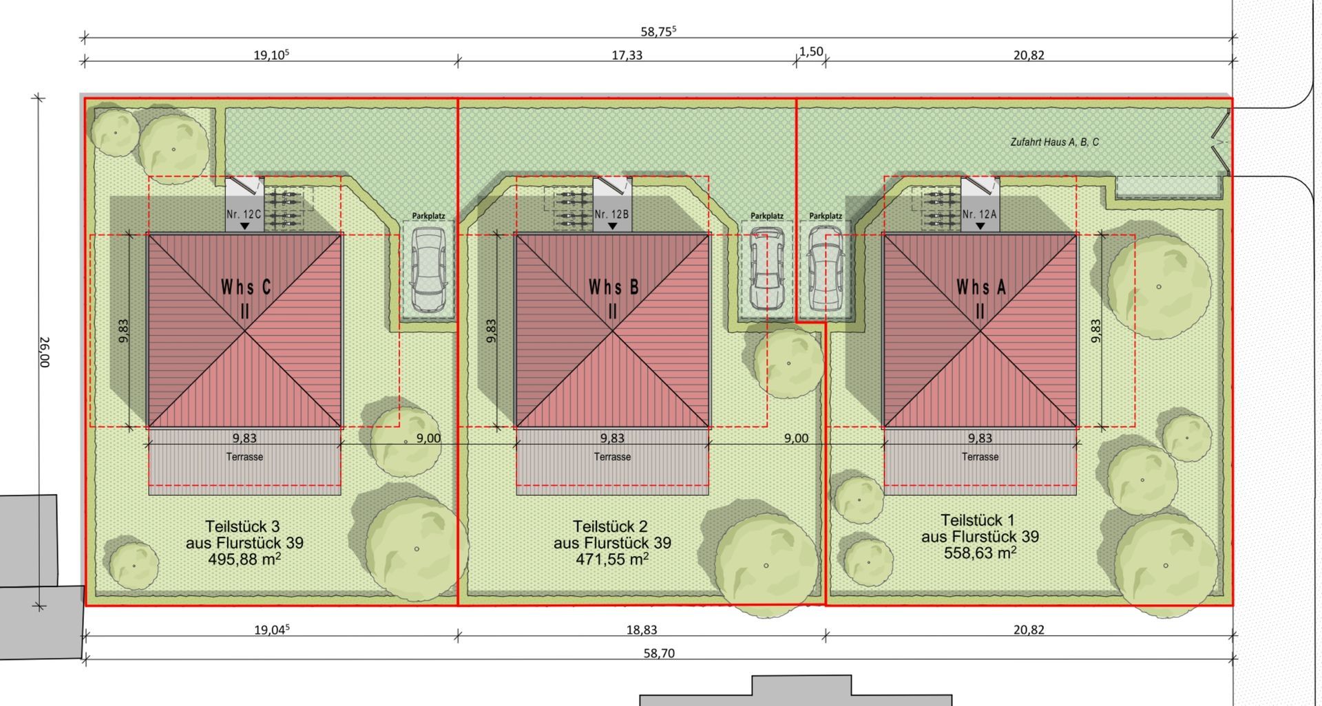
Nachhaltige Stadthäuser - Berlin Pankow
QNG - Qualitätssiegel Nachhaltiges Gebäude

RENSCH-HAUS - Qualitätssiegel Nachhaltiges Gebäude (QNG) für KfN 40-Förderung als klimafreundlicher Neubau:
Mit unserem Partner RENSCH-HAUS bauen Sie nachhaltig und zirkulär, ohne individuellen Komfort einzubüßen. Da RENSCH-HAUS über das „Qualitätssiegel Nachhaltiges Gebäude“ (QNG) verfügt, erfüllen Sie mit Ihrem klimafreundlichen Neubau leicht die Voraussetzungen zur KfN-Förderung. Ein Energieeffizienzhaus erzeugt den Großteil seiner benötigten Energie selbst und ist damit unabhängig von steigenden Energiepreisen. Moderne Haustechnik sowie eine gute Dämmung bilden die Basis für energieeffizientes Wohnen und nachhaltiges und Bauen. Mit Photovoltaik und einer Heizung mit Wärmerückgewinnung wird ein RENSCH-HAUS zu einem Plus-Energie-Haus und deckt somit den Jahres-Energiebedarf selbst ab. www.rensch-haus.com








